Case Indipendenti in vendita via badoglio 5a, San Michele Salentino, località Centro Città

Puglia Brindisi San Michele Salentino Centro Città Rif. SM 30
    via badoglio 5a
+

Elegante abitazione al piano rialzato: ampia e luminosa

Prezzo
€ 240.000
Contratto
Vendita
Tipologia
Case Indipendenti
Destinazione
Residenziale
Regione
Puglia
Provincia
Brindisi
Comune
San Michele Salentino
Località
Centro Città
Superficie
230 m² Dettagli
Superficie Commerciale
255 m²
Locali
5
Camere
4
Bagni
1

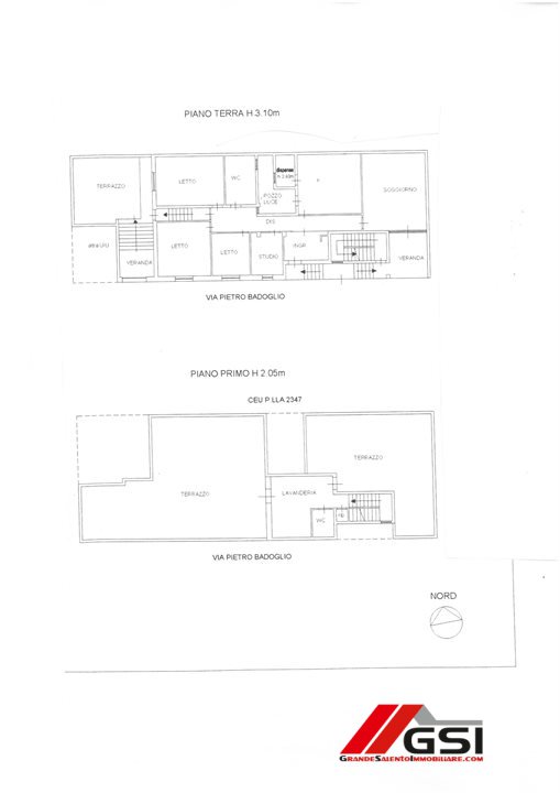
In zona centrale di San Michele Salentino, proponiamo in vendita ampia abitazione al piano rialzato, ideale per chi è alla ricerca di grandi spazi, comfort e funzionalità.

L'ingresso si apre su un ambiente accogliente e spazioso che conduce a un ampio soggiorno con porta finestra e accesso diretto a un luminoso terrazzino, perfetto per momenti di relax all'aperto. La cucina abitabile con camino, anch'essa dotata di porta finestra, offre accesso al pozzo luce e a un comodo locale dispensa, garantendo praticità e ottima aerazione.

La zona notte è ben disimpegnata e composta da quattro ampie camere da letto, ideali per famiglie numerose o per chi desidera studio e ambienti multifunzionali, oltre a bagno di generose dimensioni.

Attraverso una comoda scala interna si accede al primo piano dove troviamo una spaziosa zona lavanderia di circa 25 mq con altezza di 2 m, con bagno e camino, e accesso diretto alla terrazza : uno spazio esterno versatile, perfetto da vivere nella bella stagione.

Completa la proprietà (con acquisto a parte) la possibilità di un garage collegabile internamente all'abitazione, un valore aggiunto raro e funzionale in pieno centro.

L'immobile si presenta in ottimo stato conservativo: pur non essendo oggetto di recente ristrutturazione, è rifinito con materiali di pregio e di alta qualità, che ne esaltano solidità ed eleganza.

Una soluzione che unisce centralità, ampiezza degli ambienti, spazi esterni vivibili e la comodità del piano rialzato, perfetta per chi desidera vivere il paese con tutti i servizi a pochi passi senza rinunciare a comfort e indipendenza.

Informazioni sull'ubicazione: L'immobile si trova in zona centrale e ben servita di San Michele Salentino, a pochi passi da scuole, attività commerciali, uffici e servizi principali. La vicinanza al centro del paese permette di muoversi comodamente a piedi, rendendo la soluzione ideale per famiglie e per chi desidera avere tutto a portata di mano.

Specificazioni dell'immobile: L'immobile è rifinito con materiali di pregio e di alta qualità, caratterizzato da pavimentazioni eleganti, rivestimenti curati, infissi solidi e dettagli costruttivi di ottima fattura che garantiscono comfort e durata nel tempo. Le finiture, mantenute in eccellente stato conservativo, consentono di abitare la proprietà sin da subito, senza necessità di interventi immediati.

Classe Energetica:

Caratteristiche

Condizioni: Abitabile
Riscaldamento: Autonomo
Giardino m2: No
Piano: Piano Terra - piani edificio: 2
Cucina: Abitabile
Arredato: Non Arredato
Terrazzo: Si m2 20
Balcone: No
Anno di Costruzione: 1980
Altezza: 310
Condizionatore: Assente
Centro Città
Camino

Foto

Elegante abitazione al piano rialzato: ampia e luminosa - 1
Elegante abitazione al piano rialzato: ampia e luminosa - 2
Elegante abitazione al piano rialzato: ampia e luminosa - 3
Elegante abitazione al piano rialzato: ampia e luminosa - 4
Elegante abitazione al piano rialzato: ampia e luminosa - 5
Elegante abitazione al piano rialzato: ampia e luminosa - 6
Elegante abitazione al piano rialzato: ampia e luminosa - 7
Elegante abitazione al piano rialzato: ampia e luminosa - 8
Elegante abitazione al piano rialzato: ampia e luminosa - 9
Elegante abitazione al piano rialzato: ampia e luminosa - 10
Elegante abitazione al piano rialzato: ampia e luminosa - 11
Elegante abitazione al piano rialzato: ampia e luminosa - 12
Elegante abitazione al piano rialzato: ampia e luminosa - 13
Elegante abitazione al piano rialzato: ampia e luminosa - 14
Elegante abitazione al piano rialzato: ampia e luminosa - 15
Elegante abitazione al piano rialzato: ampia e luminosa - 16
Elegante abitazione al piano rialzato: ampia e luminosa - 17
Elegante abitazione al piano rialzato: ampia e luminosa - 18
Elegante abitazione al piano rialzato: ampia e luminosa - 19
Elegante abitazione al piano rialzato: ampia e luminosa - 20
Elegante abitazione al piano rialzato: ampia e luminosa - 21
Elegante abitazione al piano rialzato: ampia e luminosa - 22
Elegante abitazione al piano rialzato: ampia e luminosa - 23
Elegante abitazione al piano rialzato: ampia e luminosa - 24
Elegante abitazione al piano rialzato: ampia e luminosa - 25
Elegante abitazione al piano rialzato: ampia e luminosa - 26
Elegante abitazione al piano rialzato: ampia e luminosa - 27
Elegante abitazione al piano rialzato: ampia e luminosa - 28
Elegante abitazione al piano rialzato: ampia e luminosa - 29
Elegante abitazione al piano rialzato: ampia e luminosa - 30
Elegante abitazione al piano rialzato: ampia e luminosa - 31
Elegante abitazione al piano rialzato: ampia e luminosa - 32
Elegante abitazione al piano rialzato: ampia e luminosa - 33
Elegante abitazione al piano rialzato: ampia e luminosa - 34
Elegante abitazione al piano rialzato: ampia e luminosa - 35
Elegante abitazione al piano rialzato: ampia e luminosa - 36
Elegante abitazione al piano rialzato: ampia e luminosa - 37
Elegante abitazione al piano rialzato: ampia e luminosa - 38
Elegante abitazione al piano rialzato: ampia e luminosa - 39
Elegante abitazione al piano rialzato: ampia e luminosa - 40
Elegante abitazione al piano rialzato: ampia e luminosa - 41
Elegante abitazione al piano rialzato: ampia e luminosa - 42
Elegante abitazione al piano rialzato: ampia e luminosa - 43
Elegante abitazione al piano rialzato: ampia e luminosa - 44
Elegante abitazione al piano rialzato: ampia e luminosa - 45
Elegante abitazione al piano rialzato: ampia e luminosa - 46
Elegante abitazione al piano rialzato: ampia e luminosa - 47
Elegante abitazione al piano rialzato: ampia e luminosa - 48
Elegante abitazione al piano rialzato: ampia e luminosa - 49
Elegante abitazione al piano rialzato: ampia e luminosa - 50
Elegante abitazione al piano rialzato: ampia e luminosa - 51
Elegante abitazione al piano rialzato: ampia e luminosa - 52
Elegante abitazione al piano rialzato: ampia e luminosa - 53
Elegante abitazione al piano rialzato: ampia e luminosa - 54

Planimetrie

Elegante abitazione al piano rialzato: ampia e luminosa - 1

Mappa

Benvenuto! Clicca su uno dei nostri assistenti per inviare un messaggio, vi risponderanno il prima possibile.

Chat via WhatsApp